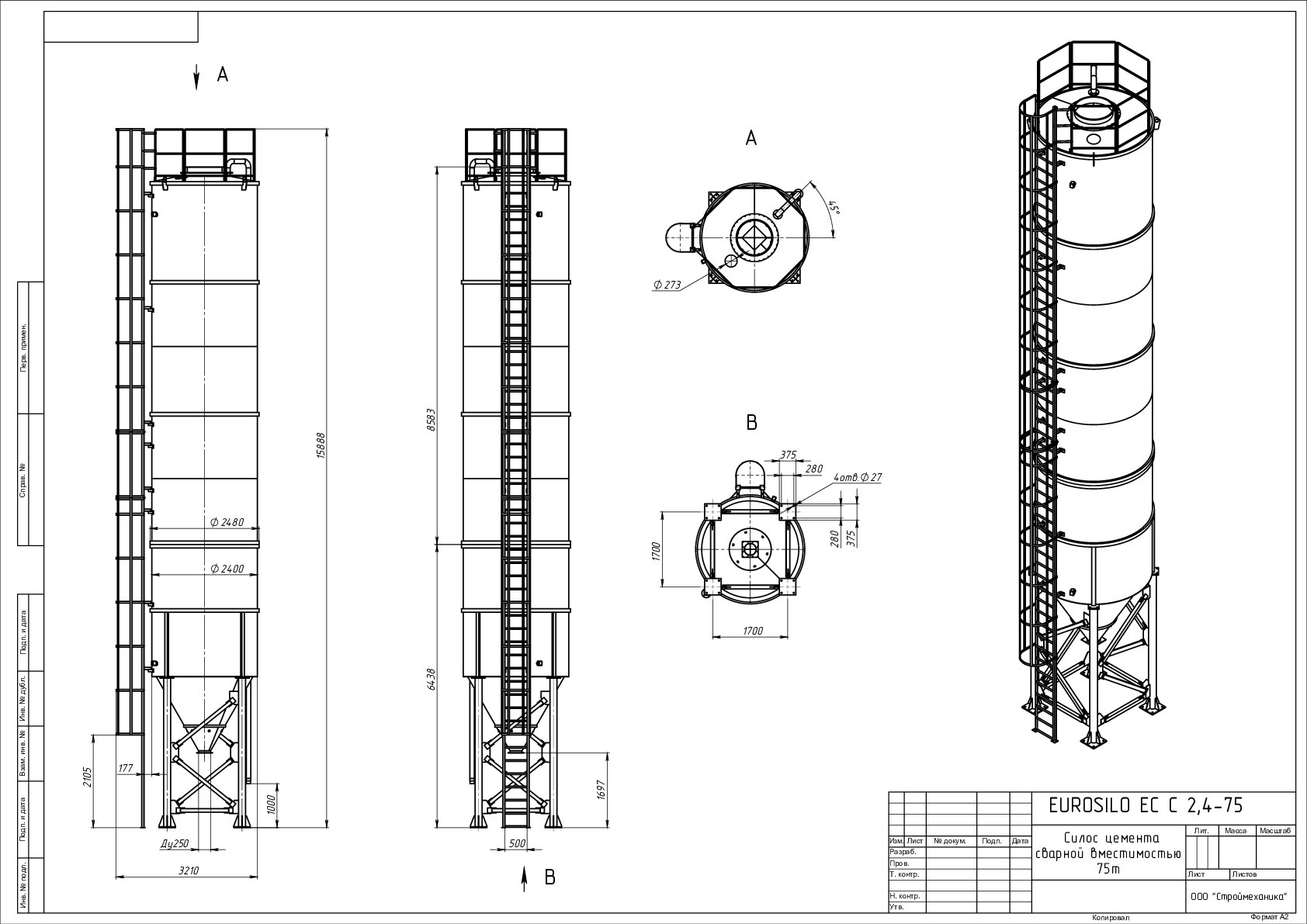
Силос EUROSILO ЕС С 2,4-75
Характеристики
Документы
Описание
Для контроля за уровнем цемента в силосах устанавливаются датчики нижнего и верхнего уровня, также силоса оборудуются рукавными фильтрами SILOTOP производства фирмы WAMGROUP (Италия) с системой импульсной продувки фильтрующих элементов, имеющей как дистанционное, так и местное управление. Рукавный фильтр устанавливается на верхнюю платформу силоса и служит для очистки запыленного воздуха, выходящего из силоса при загрузке цемента.
Загрузка цемента в силос осуществляется по пневматическому цементопроводу, для обеспечения безостановочной подачи материала в нижней (конусной) части силоса устанавливается система аэрации.
Выгрузка цемента из силоса производится винтовым конвейером серии АРМАТА ВК.
Опорный каркас, емкость и остальные части силосов изготавливаются из качественной стали и покрываются защитным покрытием от коррозии. Это позволяет работать в любых климатических условиях и гарантирует их долговечность. Емкость силоса цемента изготавливается из стали толщиной 4-6 мм.
